您当前位置:首页 » 土木装修 » 装修图纸
银行运营中心装修设计装饰施工图
  • 资料等级:
  • 授权方式:资料共享
  • 发布时间:2022-10-24 11:30:33
  • 资料类型:RAR
  • 资料大小:163 MB
  • 资料分类:土木装修
  • 运行环境:WinXp,Win2003,WinVista,Win ;
  • 解压密码:civilcn.com
银行运营中心装修设计装饰施工图
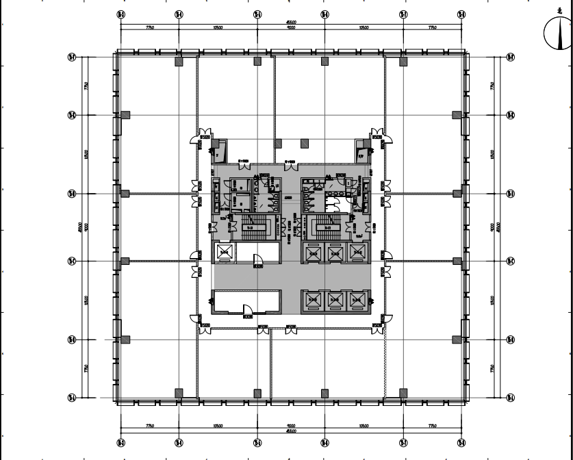
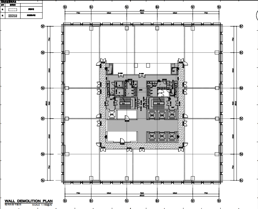
银行运营中心装修设计装饰施工图包括:原始平面布置图、墙体拆除平面图、墙体改造平面图、平面布置图、反射天花布置图、天花灯具定位图、综合天花布置图、天花灯具连线图、地面布置图、墙面材料平面图、门、立面索引平面图等。
软件截图
  • 银行运营中心装修设计装饰施工图
  • 银行运营中心装修设计装饰施工图
  • 银行运营中心装修设计装饰施工图
推荐下载
相关下载
评论网友评论仅供网友表达个人看法,并不表明土木工程网同意其观点或证实其描述!
验证码: 验证码