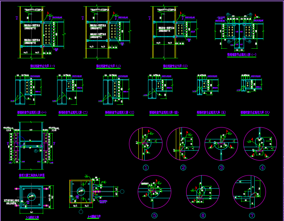
300张常见钢结构节点构造详图包括:钢结构焊缝节点构造洋图、钢结构加层图、钢结构轻质填充墙连接节点洋图、钢结构展厅结构节点构造详图、钢结构住宅构件连接节点构造详图、钢结构柱脚节点构造洋图、钢结构座台节点构造详图、钢框架标准焊缝节点构造详图、钢框架标准焊接大样图、钢框架厂房三桩承台节点详图、钢框架厂房设备支架节点构造详图、钢框架焊缝节点构造详图、钢框架夹层节点构造详图等。




RAR