Äúµ±Ç°Î»Ö㺠Ê×Ò³» ½á¹¹Éè¼Æ» ¿¹Õð¼Ó¹Ì
ÁºÖù¼Ó¹ÌÔö´ó½ØÃæ×ö·¨Ïêͼ
  • ×ÊÁϵȼ¶£º
  • ÊÚȨ·½Ê½£º×ÊÁϹ²Ïí
  • ·¢²¼Ê±¼ä£º2021-03-31
  • ×ÊÁÏÀàÐÍ£ºRAR
  • ×ÊÁÏ´óС£º1.92 MB
  • ×ÊÁÏ·ÖÀࣺ½á¹¹Éè¼Æ
  • ÔËÐл·¾³£ºWinXp,Win2003,WinVista,Win ;
  • ½âѹÃÜÂ룺civilcn.com
ÁºÖù¼Ó¹ÌÔö´ó½ØÃæ×ö·¨Ïêͼ
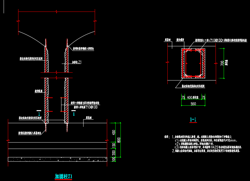
¸Ã×ÊÁÏÖ÷ÒªÊÇÉæ¼°íÅÁº¡¢íÅÖùÔö´ó½ØÃæ¼Ó¹ÌµÄ¼¼Êõ´¦Àíͼֽ£¬É漰һЩ±È½Ï³ÉÊìµÄ½ÚµãÁ¬½ÓÄÚÈÝ¡£
Èí¼þ½ØÍ¼
  • ÁºÖù¼Ó¹ÌÔö´ó½ØÃæ×ö·¨Ïêͼ
  • ÁºÖù¼Ó¹ÌÔö´ó½ØÃæ×ö·¨Ïêͼ