首页
论文
毕业
图纸
知识
方案
全部
建筑
结构
水利
园林
建筑设计
结构设计
水利工程
给水排水
园林工程
暖通空调
环境保护
路桥工程
岩土工程
工程造价
CAD教程
注册考试
电气工程
结构论文
结构图纸
毕业设计
结构图集
计算分析
结构施工
结构课件
PKPM
3D3S
ansys
结构表格
结构总结
抗震加固
实习报告
结构规范
结构书籍
您当前位置:
首页
»
结构设计
»
结构图纸
»
钢结构
某公司仓库钢结构施工图
资料等级:
授权方式:
资料共享
发布时间:
2022-10-11
资料类型:
RAR
资料大小:
736 KB
资料分类:
结构图纸
运行环境:
WinXp,Win2003,WinVista,Win ;
解压密码:
civilcn.com
软件介绍
充值VIP
下载帮助
下载地址
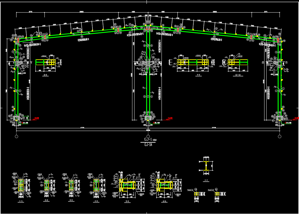
本工程为xxx货柜仓库;结构类型为门式刚架钢结构;结构使用年限25年,建筑结构安全等级二级场地类别:II类;抗震基本烈度 6度(0.05s)第二组。
某公司仓库钢结构施工图包括:地脚锚栓布置图,抗风柱详图、屋面结构布置图、屋面支撑布置图、柱间支撑布置图、吊车梁系统构件布置图、吊车梁连接节点详图等。
软件截图
下载地址
充值VIP
下载帮助
立即下载
土木工程网提醒您:本资料下载权限为
(普通会员)
点击进入下载某公司仓库钢结构施工图
(需要3积分)
推荐下载
PKPM
PKPM相关参数设置
3D3S
3D3S视频教程:杆件导荷载常见问题
STRAT
空心板无梁楼盖采用等代梁计算对比
ansys
Ansys在土木工程结构计算方面的最新工作
毕业
六层框架结构商务宾馆毕业设计(含图纸) 3
施工
框剪结构住宅高支模架专项施工方案
相关下载
评论
网友评论仅供网友表达个人看法,并不表明土木工程网同意其观点或证实其描述!
验证码:
热门标签
结构设计
结构毕业设计
结构图纸
结构课件
结构工艺工法
STRAT教程
抗震加固
混凝土结构
PKPM教程
结构软件
结构下载
热门图纸
结构软件
结构计算表
计算分析
50款工程计算小工具
结构课件
四川省附着式脚手架安全技术标准PDF 51P
结构表格
钢结构分项工程通用检验验收记录表
结构总结
土建工程师主体结构施工年终总结 4P
实习报告
结构实习报告与结构设计院实习报告合集 16P
抗震加固
四层框架结构教学楼屋顶加建改造施工图(含给排水
工艺工法
现浇混凝土结构施工工艺规程PDF 24P
砌体结构
三层砌体结构住宅楼结构施工图
混凝土
钢混结构仿古牌坊施工图
钢结构
300张常见钢结构节点构造详图
厂房结构
单层钢结构厂房全套施工图纸(含电气、暖通、给排
地基基础
桩基础承台设计详图
毕业设计
某六层宿舍楼全套毕业设计(含计算书、建筑图、结
结构施工
框剪结构住宅高支模架专项施工方案
钢筋混凝土梁平法施工图识读 57P
16G101平法及钢筋计算基本知识
某服装厂厂房综合楼毕业设计(含图纸、计算
钢结构住宅楼方案毕业设计计算书及图纸
热点论文
工程知识
建筑论文
房建基础工程施工组织设计汇总
结构论文
脚手架工程技术培训及施工方案汇总
水利论文
最新水电站、大坝、水库、河堤施工组织、施工方案
园林论文
园林跌水景观施工全攻略,附最新跌水设计图
路桥论文
市政工程质量控制及施工质量通病防治技术汇总
电气论文
最新50份水电安装工程施工方案、施工组织设计整理
造价论文
预算书及监理员个人年终总结相关资料推荐
CAD教程
AutoCAD 2023版本功能介绍及安装教程
施工知识
建筑材料进场复试检测包括哪些项目?
建筑知识
建筑各类等级汇总
造价知识
新手如何简单快速的看懂工程图纸?
结构知识
带夹层(越层)结构设计的思考
电气知识
普通照明、应急照明、事故照明系统的设计
安全文明
十条建筑工地疫情防控要点
市政知识
什么是道路坡度?坡度的表示又是如何?
合同知识
建筑施工合同的审查要点!
互动交流
微信扫码关注公众号
获取更多土木资讯