规划用地面积3559.43平方米,总建筑面积3770.3平方米,主要建厂房2880平方米,库房668.08平方米,公厕66.22平方米,房屋地上部分高度:9.9米,房屋地上部分层数:3层,抗震设防烈度6度,设计使用年限为50年。
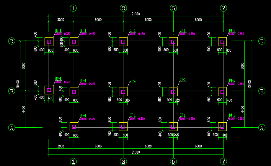
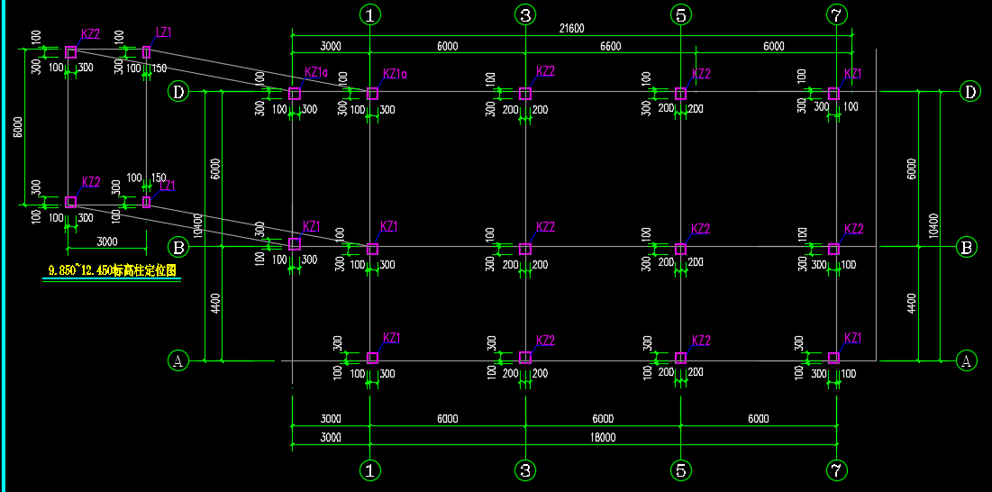
茶厂三层仓库及公厕结构施工图纸(含建筑、招标文件)包括了办公室楼基础平面布置图、-0.050标高梁配筋图(地梁)、基础顶~3.250标高柱定位图、3.250~9.850标高柱定位图、3.250标高梁板配筋图、6.55标高梁板配筋图、9.85标高及以上梁板配筋图、3.270层梁板平法施工图等。










