建筑物使用年限50年;结构安全等级:二级,结构耐火等级为一级。本场地抗震设防烈度为8度,设计地震分组为第二组。本地区III类场地基本地震动峰值加速度为0.2g,基本地震动加速度反应谱特征周期为0.55s。
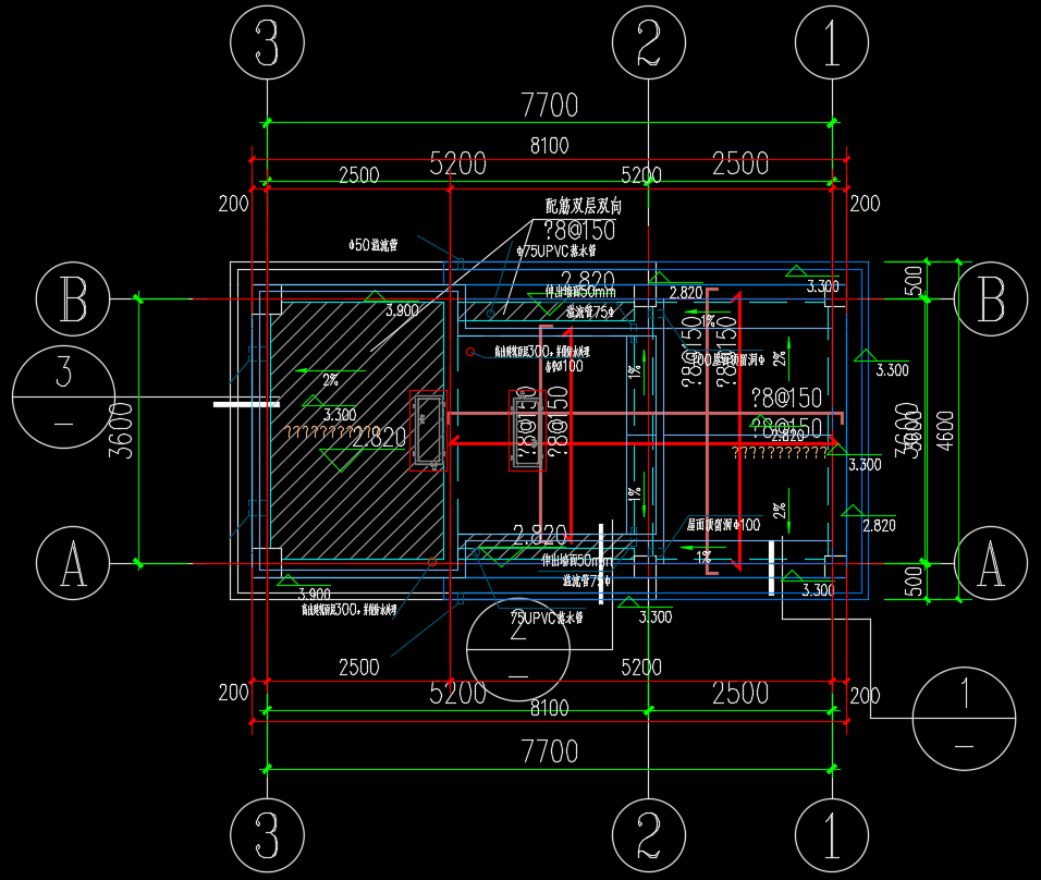
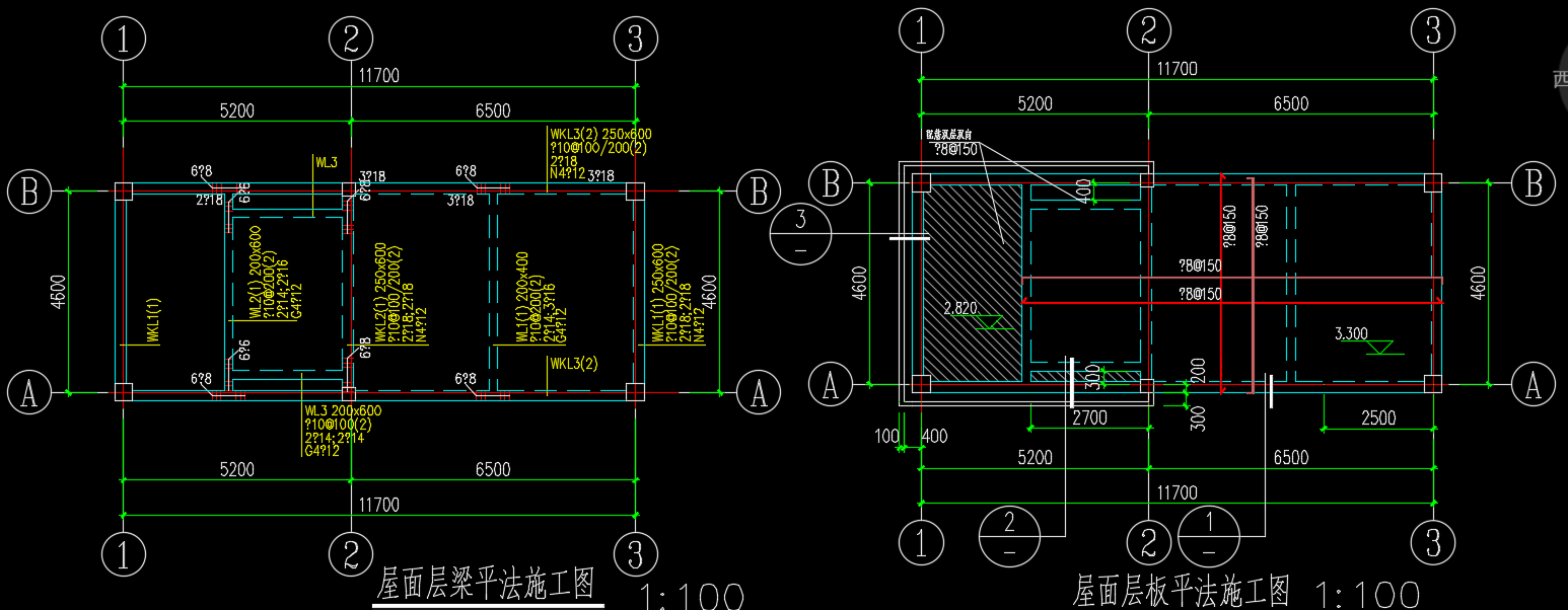
框架结构门卫室结构施工图纸(含建筑、水电暖)包括了混凝土构造详图、焊缝标准图、门卫结构图、基础平面布置图、柱平法施工图、屋面层梁平法施工图、屋面层板平法施工图、节点大样图、总平面图及分析图、平、立、剖面图、大样详图、节点详图等。




RAR