您当前位置:首页 » 土木装修 » 装修图纸
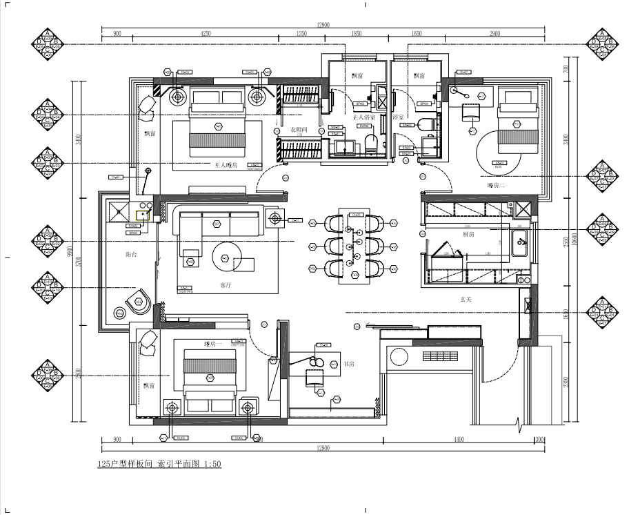
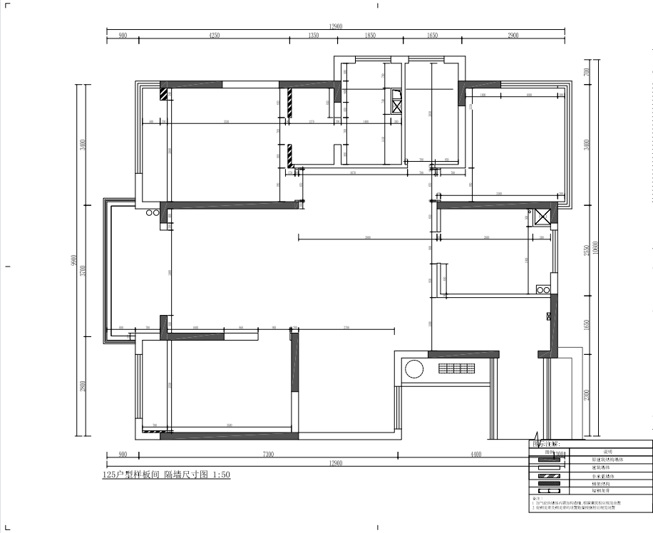
125㎡三居住宅样板房室内装修施工图
  • 资料等级:
  • 授权方式:资料共享
  • 发布时间:2021-07-15 10:36:18
  • 资料类型:RAR
  • 资料大小:228 MB
  • 资料分类:土木装修
  • 运行环境:WinXp,Win2003,WinVista,Win ;
  • 解压密码:civilcn.com
125㎡三居住宅样板房室内装修施工图
125㎡三居住宅样板房室内装修施工图包括:平面布置图、家私及索引平面图、隔墙尺寸图、地坪图、天花尺寸图、灯具尺寸图、灯位连线图、电插座图、给排水图、客厅、书房立面图、客厅立面图、主人睡房立面图、衣帽间立面图、主人浴室立面图、睡房一立面图、浴室立面图、厨房立面图、阳台立面图等。

软件截图
  • 125㎡三居住宅样板房室内装修施工图
  • 125㎡三居住宅样板房室内装修施工图
  • 125㎡三居住宅样板房室内装修施工图