您当前位置:首页 » 土木装修 » 装修图纸
现代轻奢风餐厅装修施工图(PDF版)
  • 资料等级:
  • 授权方式:资料共享
  • 发布时间:2021-07-17 10:28:52
  • 资料类型:RAR
  • 资料大小:198 MB
  • 资料分类:土木装修
  • 运行环境:WinXp,Win2003,WinVista,Win ;
  • 解压密码:civilcn.com
现代轻奢风餐厅装修施工图(PDF版)
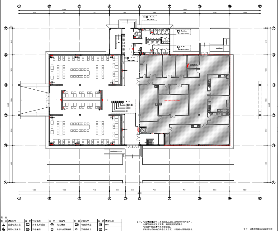
现代轻奢风餐厅装修施工图包括:一层卫生间立面索引图、一层活动家具平面图、一层电气平面图、一层天花平面图、一层灯具定位图、一层灯具回路图、一层综合天花图、一层墙面材料图、咖啡吧与走道隔墙、咖啡吧屐示柜、咖啡吧吧台、二层走廊入口造型墙、咖啡厅书柜等。








软件截图
  • 现代轻奢风餐厅装修施工图(PDF版)
  • 现代轻奢风餐厅装修施工图(PDF版)
  • 现代轻奢风餐厅装修施工图(PDF版)