您当前位置:首页 » 土木装修 » 装修图纸
290平方米品牌服装店装修施工图
  • 资料等级:
  • 授权方式:资料共享
  • 发布时间:2021-07-17 14:40:36
  • 资料类型:RAR
  • 资料大小:36.4 MB
  • 资料分类:土木装修
  • 运行环境:WinXp,Win2003,WinVista,Win ;
  • 解压密码:civilcn.com
290平方米品牌服装店装修施工图
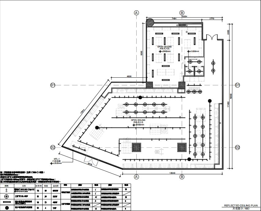
290平方米品牌服装店装修施工图包括:现场尺寸及拆除平面图、间隔墙身加固平面图、平面图、电力通用平面图、天花图、灯具桥架图、导轨定位图、灯具尺寸平面图、天花饰面图、墙身饰面平面图、海报平面图、地坪铺贴图、地面彩条布置图、道具平面图、室外立面图等。
软件截图
  • 290平方米品牌服装店装修施工图
  • 290平方米品牌服装店装修施工图
  • 290平方米品牌服装店装修施工图