您当前位置:首页 » 土木装修 » 装修图纸
现代风酒吧室内装修施工图纸
  • 资料等级:
  • 授权方式:资料共享
  • 发布时间:2021-07-19 11:14:41
  • 资料类型:RAR
  • 资料大小:120 MB
  • 资料分类:土木装修
  • 运行环境:WinXp,Win2003,WinVista,Win ;
  • 解压密码:civilcn.com
现代风酒吧室内装修施工图纸
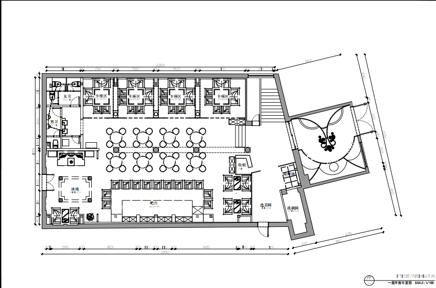
现代风酒吧室内装修施工图纸包括:一层原始结构图、一层砌墙尺寸图、一层平面布置图、一层地坪布置图、一层综合天花图、一层灯具定位图、一层机电点位图、一层排水示意图、一层立面索引图等。



软件截图
  • 现代风酒吧室内装修施工图纸
  • 现代风酒吧室内装修施工图纸
  • 现代风酒吧室内装修施工图纸