Äúµ±Ç°Î»Ö㺠Ê×Ò³» ÍÁľװÐÞ» ×°ÐÞͼֽ
¾ÆµêË«´²·¿¼°ÃÔÄã°ÉÊÒÄÚ×°ÐÞÊ©¹¤Í¼
  • ×ÊÁϵȼ¶£º
  • ÊÚȨ·½Ê½£º×ÊÁϹ²Ïí
  • ·¢²¼Ê±¼ä£º2022-01-12 10:17:04
  • ×ÊÁÏÀàÐÍ£ºRAR
  • ×ÊÁÏ´óС£º2.87 MB
  • ×ÊÁÏ·ÖÀࣺÍÁľװÐÞ
  • ÔËÐл·¾³£ºWinXp,Win2003,WinVista,Win ;
  • ½âѹÃÜÂ룺civilcn.com
¾ÆµêË«´²·¿¼°ÃÔÄã°ÉÊÒÄÚ×°ÐÞÊ©¹¤Í¼
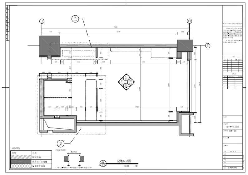
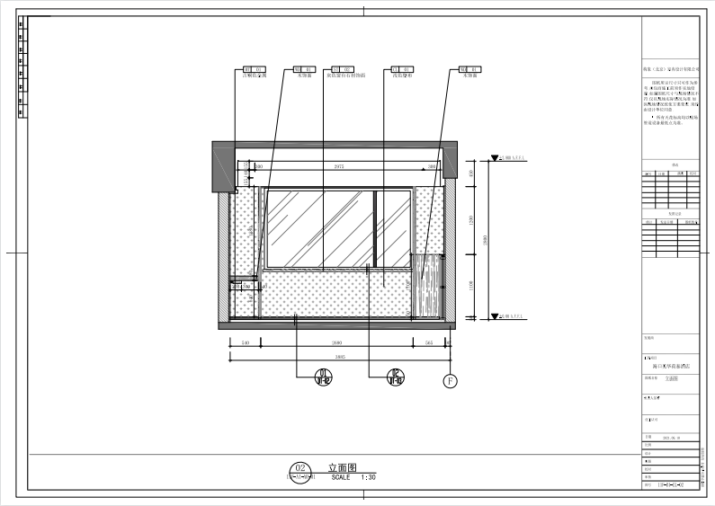
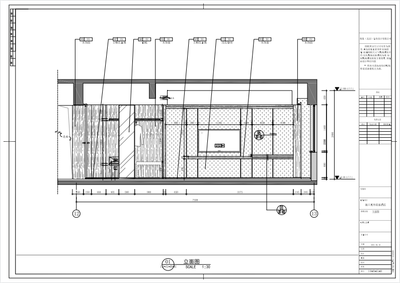
¾Æµê¿Í·¿Ë«´²·¿¼°ÃÔÄã°ÉÊÒÄÚ×°ÐÞÊ©¹¤Í¼°üÀ¨£ºË«´²·¿¼Ò¾ß²¼ÖÃͼ¡¢Ë«´²·¿¸ôǽ³ß´çͼ¡¢Ë«´²·¿µØÃæÆÌװͼ¡¢Ë«´²·¿Ì컨²¼ÖÃͼ¡¢Ë«´²·¿Ì컨³ß´çͼ¡¢Ë«´²·¿»úµçµãλͼ¡¢ÎÀÉú¼ä·Å´óͼ¡¢ÎÀÉú¼äÁ¢ÃæÍ¼¡¢Ì컨µØÃæ ½Úµã´óÑùͼ¡¢Ç½Ãæ½Úµã´óÑùͼ¡¢½Úµã´óÑùͼ¡¢Ò¹ñ½Úµã´óÑùͼµÈ¡£
Èí¼þ½ØÍ¼
  • ¾ÆµêË«´²·¿¼°ÃÔÄã°ÉÊÒÄÚ×°ÐÞÊ©¹¤Í¼
  • ¾ÆµêË«´²·¿¼°ÃÔÄã°ÉÊÒÄÚ×°ÐÞÊ©¹¤Í¼
  • ¾ÆµêË«´²·¿¼°ÃÔÄã°ÉÊÒÄÚ×°ÐÞÊ©¹¤Í¼