您当前位置:首页 » 土木装修 » 装修图纸
复式公寓样板间室内装修施工图
  • 资料等级:
  • 授权方式:资料共享
  • 发布时间:2022-02-22 15:44:02
  • 资料类型:RAR
  • 资料大小:29.2 MB
  • 资料分类:土木装修
  • 运行环境:WinXp,Win2003,WinVista,Win ;
  • 解压密码:civilcn.com
复式公寓样板间室内装修施工图
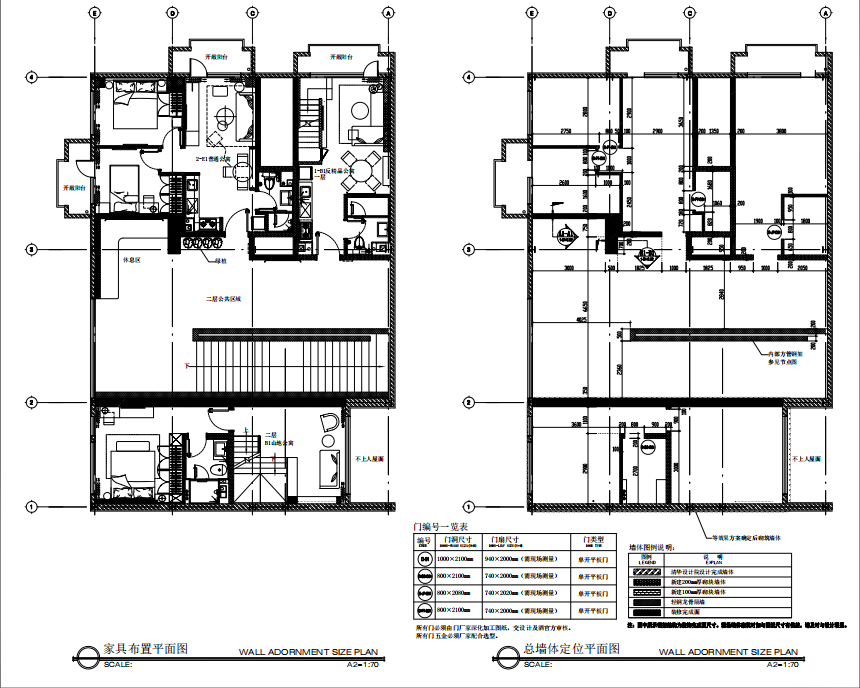
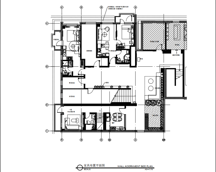
复式公寓样板间室内装修施工图包括:F2层家具布置平面图、墙体定位平面图、F1层中庭平面布置图、F1层中庭完成面尺寸图、F1层中庭水点、强弱电点位平面图、F1层中庭天花及灯具尺寸平面图、F1层中庭综合天花平面图、F1层中庭线路控制平面图、F1层中庭地面铺装平面图等。
软件截图
  • 公寓装修图,样板间装修图,室内装修图
  • 公寓装修图,样板间装修图,室内装修图
  • 公寓装修图,样板间装修图,室内装修图