本工程地下1层,地上12层,室内外高差1200mm, 建筑物高度(室外地面至主要屋面板的板顶):48.8m。设计标高±0.000相当于绝对标高(吴淞)6.08m 。上部结构体系: 现浇钢筋混凝土框架结构。本工程在设计考虑的环境类别的结构设计使用年限为50年。
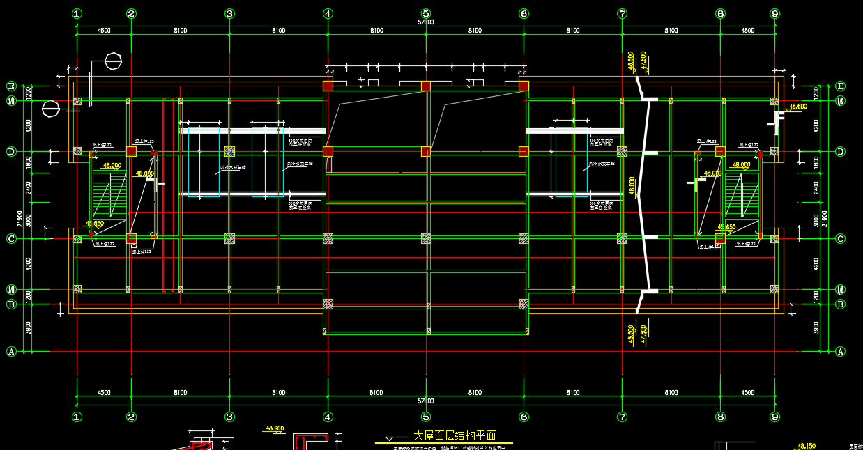
十二层框架结构商业楼结构施工图纸包括了-1.250─4.750柱平法施工图、4.750─9.550柱平法施工图、-5.100 ─ -1.250柱平法施工图、9.550─43.750柱平法施工图、43.750─47.600柱平法施工图、47.600以上柱平法施工图、承台定位平面、大屋面层结构平面、地下室底板结构平面、机房屋面层结构平面、三层梁平法施工图、四~十一层梁平法施工图、主楼楼梯平面、桩位平面等。










