您当前位置:首页 » 土木装修 » 装修图纸
三层售楼处室内装修设计施工图
  • 资料等级:
  • 授权方式:资料共享
  • 发布时间:2021-07-17 17:06:13
  • 资料类型:RAR
  • 资料大小:189 MB
  • 资料分类:土木装修
  • 运行环境:WinXp,Win2003,WinVista,Win ;
  • 解压密码:civilcn.com
三层售楼处室内装修设计施工图
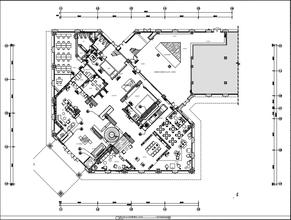
三层售楼处室内装修设计施工图包括:原始建筑图、平面家具布置图、立面索引图、隔墙定位图、地面材料图、综合天花图、首层天花尺寸定位图 、首层灯具尺寸定位图、天花灯具控制图 、强弱电配置图、给排水点位图、3D打印博物馆立面图、书吧与楼梯立面图、当代艺术馆立面图。


软件截图
  • 三层售楼处室内装修设计施工图
  • 三层售楼处室内装修设计施工图
  • 三层售楼处室内装修设计施工图